REQUEST A TOUR If you would like to see this home without being there in person, select the "Virtual Tour" option and your agent will contact you to discuss available opportunities.
In-PersonVirtual Tour

Listed by Ed Doucet • Re/Max Twin City Realty Inc
$ 569,000
Est. payment | /mo
$ 569,000
Est. payment | /mo
Key Details
Property Type Single Family Home
Sub Type Residential
Listing Status Active
Purchase Type For Sale
MLS Listing ID 40779135
Annual Tax Amount $4,879
Property Sub-Type Residential
Source Brantford
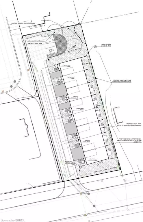
Property Description
0.54 Acre Development Property, site plan approved for 8 townhouses. Letter of Credit Posted with sanitary sewers, storm sewers and water infrastructure installed on property (still needs to be connected to municipal services). Close proximity to schools, local restaurants, shopping makes it a great choice to live. Designed for practicality, the site plan includes an opportunity for 19 parking spaces, ensuring residents and guests always find convenient parking. Property being sold “As Is, Where is” under Power of Sale.
Location
Province ON
County Norfolk
Area Town Of Simcoe
Zoning R4
Direction Victoria Street
Rooms
Kitchen 0
Interior
Fireplace No
Exterior
Utilities Available Other
Lot Frontage 30.48
Garage No
Building
Lot Description Urban, None
Faces Victoria Street
Sewer Other
Water Other
New Construction No
Others
Senior Community No
Tax ID 502340391
Ownership Freehold/None
Copyright 2025 Information Technology Systems Ontario, Inc.
GET MORE INFORMATION




