
3 Beds
3 Baths
1,939 SqFt
3 Beds
3 Baths
1,939 SqFt
Key Details
Property Type Single Family Home
Sub Type Detached
Listing Status Active
Purchase Type For Sale
Square Footage 1,939 sqft
Price per Sqft $453
MLS Listing ID 40748180
Style Two Story
Bedrooms 3
Full Baths 2
Half Baths 1
Abv Grd Liv Area 1,939
Property Sub-Type Detached
Source Cornerstone
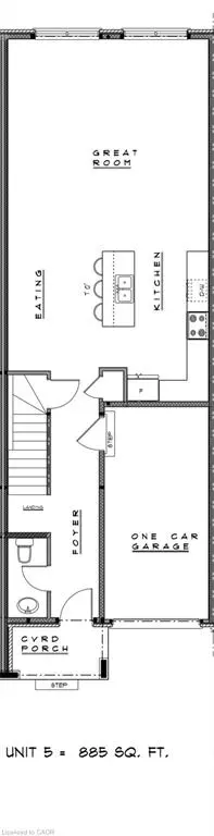
Property Description
one of Thorold's fastest growing and most sought after communities. Proudly built
by Marken Homes, a trusted name in Niagara renowned for quality craftsmanship and
lasting value, this exclusive collection of six freehold two storey townhomes
offers the ideal blend of comfort, style, and location. Each home features a
thoughtfully designed layout with 3 spacious bedrooms, 2.5 modern bathrooms, and
an inviting main floor that includes 9' ceilings, elegant 12"x24" ceramic tiles,
and custom maple kitchen cabinetry. Additional features include asphalt driveways,
contemporary finishes, and a layout that perfectly suits growing families or busy
professionals. Located just minutes from every convenience: 9 minutes to Brock
University, 9 minutes to Niagara College (NOTL Campus), 15 minutes to Niagara
College (Welland Campus), 10 minutes to Costco, Walmart, and major retail, Moments
from the world-famous Niagara Falls. Completion is estimated in approximately one
year. secure your future home today in this vibrant, family friendly neighborhood
surrounded by parks, schools, and easy highway access. Don't miss this rare
opportunity to own a brand-new home built to the highest standards by Marken
Homes. Live where quality meets convenience. contact us today to reserve your
unit.
Location
Province ON
County Niagara
Area Thorold
Zoning R
Direction Elvira Way.
Rooms
Basement Full, Unfinished
Bedroom 2 3
Kitchen 2
Interior
Heating Forced Air, Natural Gas
Cooling Central Air
Fireplace No
Appliance Water Heater
Laundry In Area
Exterior
Parking Features Attached Garage
Garage Spaces 2.0
Roof Type Asphalt Shing
Lot Frontage 19.7
Lot Depth 98.6
Garage Yes
Building
Lot Description Urban, Hospital, Place of Worship, Schools
Faces Elvira Way.
Sewer Sewer (Municipal)
Water Municipal
Architectural Style Two Story
Structure Type Brick Veneer,Vinyl Siding
New Construction No
Others
Senior Community No
Tax ID 640571260
Ownership Freehold/None
GET MORE INFORMATION







